itec systems AG – Standortsuche, Düsseldorf
Auf dem Weg zum neuen Standort
Bauherr: itec systems AG
Standort: Düsseldorf, Deutschland
Fertigstellung: Juli 2014
Projektgröße: Grundfläche ca. 1.050 m²
Vom ersten Gedanken an begleiten wir die itec systems AG bei Ihrer Expansion, sowie bei der Suche und Entscheidungsfindung eines neuen innerstädtischen Standortes. Beginnend mit Objektbegehungen nach Lage, Infrastruktur, Gebäudesubstanz und allgemeinem Zustand erfolgen erste Machbarkeitsstudien und Konzeptentwürfe, individuell abgestimmt auf das notwendige Anforderungsprofil.
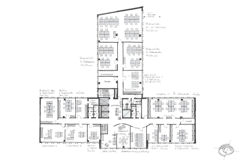
Anhand von Skizzen, jedoch maßstabsgetreu erfolgt eine Überprüfung möglicher Grundrisse. Hierbei wird schnell ersichtlich ob das notwendige Raumprogramm, Anzahl der Mitarbeiter, unterschiedliche Tätigkeiten, Flexibilität, Image „passen“, wie hoch Umfang und Größe der Einbau-, Ausbau- oder auch Revitalisierungsmaßnahmen innerhalb des Gebäudes sind (Kosten- / Nutzenanalyse).
Mit dieser innenarchitektonischen Unterstützung gelang es der itec systems AG mit geringem Aufwand sich schnell und effizient für den idealen Standort zu entscheiden.









